2026世界杯官网平台建工集团有限公司关于组织开展昆明市经开区“春漫时光”项目团购的通知
时间:2016-03-10 浏览量:14659
字体
分享到:
各公司(厂、院、中心),各经济实体,集团总部各部门:
  2026世界杯官网平台省城乡建设投资有限公司与昆明市经济技术开发区管理委员会合作开发的商品房项目 “春漫时光”位于经开区黄土坡清水片区,邻近呈黄快速路及昆石高速公路,项目运营管理工作正稳步推进中。为了解决集团下属各公司(厂、院、中心)、各经济实体、集团总部各部门住房困难职工的住宿问题,特面向集团下属各公司(厂、院、中心)、各经济实体、集团总部员工进行内部团购,本次团购房源主要为90㎡~128㎡之间的两室两厅及三室两厅,团购均价4098元/㎡,预计项目交房时间为2017年6月底,望建工集团所属各公司(厂、院、中心)、各经济实体、集团总部各部门员工积极报名参加。
 
2026世界杯官网平台省城乡建设投资有限公司
2016年3月1日
 
 
春漫时光项目简介及团购工作流程
  一、项目介绍
  开发商:2026世界杯官网平台省城乡建设投资有限公司
  区位:昆明经开区清水片区昆石高速与呈黄快速交叉处,距建工新城约3.5公里
  案名:春漫时光
  总占地:93.66亩
  总户数:1294套
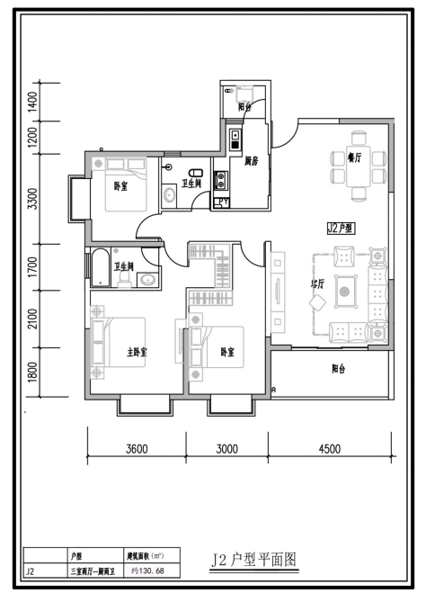
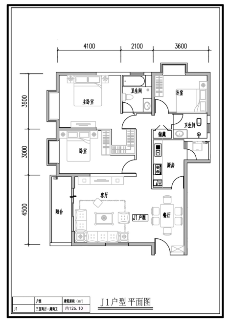
  户型面积区间:约90㎡~146㎡(户型为两室两厅、三室两厅及四室两厅)
  建筑类型:高层、小高层
  容积率:2.56
  绿化率:40.5%
  工程进度:截至2016年2月底,已全部施工至地上7层以上,最高的已至地上13层。
  预计取得预售许可证时间为:2016年4月
  预计封顶断水时间:2016年12月
  预计交房时间:2017年6月
  二、团购均价
  本次团购房源均价暂定4098元/平米(团购房源起价3603元/㎡)。
  三、团购房源
  本次团购房源暂定18栋、20栋、21栋(共计382套),面积分别为90㎡的两室两厅、124㎡及128㎡的三室两厅。
  四、团购对象
    本次团购主要为各公司(厂、院、中心),各经济实体,集团总部各部门职工(包含:正式员工,离退休员工,劳务派遣及其他员工)。
  五、报名及购房流程
  1、报名时间:2016年3月5日-----2016年3月31日(暂定)
  2、地点: 集团下属各公司(厂、院、中心)、各经济实体工会、集团总部工会或春漫时光营销中心(营销中心地址:呈贡区黄土坡社区平安驾驶员城旁)
  3、咨询电话:0871-67429000(营销中心售楼电话)
  4、报名流程:报名→ 参加项目统一介绍→缴纳报名费5000元
  5、购房流程:缴纳报名费5000元→在规定时间统一选房并缴纳购房定金→签订《团购定房协议》→补齐购房首付款→签订正式的《商品房购销合同》→办理贷款手续
  6、手续办理流程:
  团购成功:5000元报名费→缴纳总房款的20%作为团购房源定金→按照规定补齐首付款并签订购房合同→提交贷款资料办理贷款手续(报名费5000元转为购房金)
  未成功认筹退款流程:5000元报名费→内部选房不成功→退还报名费(报名费在内部团购选房后七日内退还)
  六、 相关说明
  1、认房、购房的全过程由2026世界杯官网平台省城乡建设投资有限公司昆明分公司实施。
  2、本办法由2026世界杯官网平台省城乡建设投资有限公司昆明分公司负责解释。
  3、本次团购后续事项另行通知。                 
  4、所需证明:身份证、单位证明
\
 
\
\\
\
 
微信扫一扫看文章